A PHP Error was encountered

Severity: Warning

Message: ini_set(): A session is active. You cannot change the session module's ini settings at this time

Filename: Session/Session_driver.php

Line Number: 188

A PHP Error was encountered

Severity: Warning

Message: session_write_close(): Failed to write session data using user defined save handler. (session.save_path: )

Filename: _board/view.php

Line Number: 111

KJCLUB - 東本願寺御影堂の歴史
伝統文化

 

祖母が眠る建物「東本願寺・御影堂」。その歴史を知りたくなった。

ちょうど、真宗本廟造営史という本が去年に出たので、読んでみました。

 

 

 

 

「本願寺聖人伝絵」、1343年

 

1、真宗寺院において御影堂とは、親鸞の像(御影)を安置する建物である。

  1272年、親鸞の娘・覚信尼が親鸞の像を安置する建物を建てたのが始まりという。

 

  最初期の御影堂は、小さな六角堂だったらしい。その周囲に縁側がつく。

  外側には回廊状の建物が取り囲み、その中の庭の中心にこの建物が建っていた。

 

  尚、この絵ではHiwada葺きになっているが、より古い善信上人絵詞伝ではKokera葺きに描かれている。

  この絵は昔を想起して描かれたもので、1343年には既に次の段階に移行していたと考えられる。

 

 

 

 

2、次に、本願寺が寺院としてまとまってきた頃、御影堂は六角堂ではなく、方3間の建物になった。

  その堂内に、畳がまわり敷きに敷いてあったという。

  そして、中心に阿弥陀如来が置かれ、親鸞の御影はその傍らに安置されたらしい。

 

  イメージ的には、妙源寺柳堂、根来寺大師堂などのような感じだったのだろう。

 

妙源寺柳堂、1314年の建造で重要文化財

妙源寺柳堂の平面図

 

妙源寺柳堂は、真宗系の建物では最古級である。

簡素な組物、低い天井など、住宅風の要素が見られる。

 

 

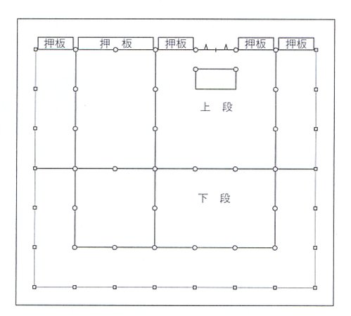
3、本願寺7世・存如の時代に、御影堂は大幅に改築されたらしい。

  また、この時代に阿弥陀堂が作られ、御影堂、阿弥陀堂の2堂体制となった。

  年代で言えば1436年から1457年の間である。

 

  上は、その御影堂の平面図。

  蓮如の息子・実悟の記録を元に作った平面図である。

  建物は上段と下段に分かれ、上段右側をNaijinとして御影が安置された。

  そして、Naijinの左側に押板の間を作り、下段に広い空間を作ってGejinとし、多くの人間を収容した。

  この時代の御影堂で初めてGejinが作られたわけだが、多くの人間を収容する必要に迫られて建物を改造したのだろう。

 

4、1478年、本願寺8世の蓮如は山科に本願寺を築いたが、御影堂はさらに規模を拡大した。

  上はその想像平面図。

  7世・存如の御影堂の左右前方にそれぞれ1間追加された。

  建物が上段、下段に分かれるのは同じだが、上段は2部屋追加され4部屋となった。

  また、下段は周囲に1間の広い縁が付いた。

  記録によれば、この建物で300人を収容したらしい。この平面図の作者は、1間の広さを従来の6尺から京都風の6尺5寸に拡大したと想定している。

  

 

 

 

5、その後、本願寺は本拠地を大阪(大坂)に移したが、上は大坂本願寺時代の御影堂の想像平面図である。

  時代は16世紀の大半をカバーする。

  大きな変化は、Naijinを中心に左右対称に部屋が配置され、Naijinの前に矢来間のような空間が形成され、さらにその前に広大なGejinが配置されたことである。

  そしてGejinは内部に2本の柱列が通って3つに区分されているが、これは現在、多くの真宗寺院の本堂で見ることができる形式である。

  要するに、大坂本願寺時代の御影堂において初めて、現在の真宗本堂形式が確立したと言えるだろう。

 

 

照蓮寺本堂(1504年)とその平面図

 

大坂本願寺と同じ時代の真宗本堂は、この照蓮寺本堂しか存在しない。

照蓮寺本堂は、真宗寺院の本堂として日本で最も古い遺構であり、重要文化財の指定を受けている。

 

 

 

1597年、本願寺御影堂の平面図

 

6、大阪から天満を経て、1591年、本願寺は京都に敷地を与えられて寺院を構える。

  当初は天満時代の建物を移築したが、1596年の大地震で被害を受けたので、翌年に改造した。

  この時の平面図が残されているが、それが上の平面図である。

 

  注目すべきは、来迎柱以外全部、角柱であること。縁側が非常に広いこと。また、落縁の周囲に軒柱が密に配置され、大屋根を支えていること。この辺は地震の反省だろうか。

  因みに、この平面図によく似た建物が残っている。それが長浜別院こと、大通寺の本堂である。

 

大通寺本堂、重要文化財

 

大通寺本堂は元・東本願寺の御影堂とされている。

1652年から54年にかけて京都から長浜に移築された。

 

1602年、本願寺は東と西に分離したが、従来の本願寺は西本願寺となり、東本願寺は新たな敷地と建物を徳川家から与えられた。この建物は元々は伏見城の遺構で、東本願寺に与えられた時、大幅に改造されたと考えられる。

 

 

 

大通寺本堂の写真

 

非常に広い縁側、密に配置された軒柱、外部、内部の柱全部が角柱など、1597年平面図とそっくりである。おそらく伏見城の建物を改造した時、1597年の本願寺御影堂を参考にしたのだろう。

 

 

つづく

 

 

 

 


동 혼간지 미카게당의 역사

 

조모가 자는 건물 「동 혼간지·미카게당」.그 역사를 알고 싶어졌다.

정확히, 마무네본묘축조사라고 하는 책이 작년에 나왔으므로, 읽어 보았습니다.

 

 

 

 

「혼간지 성인전회」, 1343년

 

1, 마무네 사원에 대해 미카게당과는, 신란의 상(미카게)을 안치하는 건물이다.

  1272년, 신란의 딸(아가씨)·가쿠신니가 신란의 상을 안치하는 건물을 지었던 것이 시작이라고 한다.

 

  최초기의 미카게당은, 작은 육각당이었던 것 같다.그 주위에 툇마루가 도착한다.

  외측에는 회랑장의 건물이 둘러싸, 그 중의 뜰의 중심으로 이 건물이 세워지고 있었다.

 

  상, 이 그림에서는 Hiwada즙 신경쓰이고 있지만, 보다 낡은 젠신 고승 설명문이 있는 그림 두루마리 전에서는 Kokera즙 나무에 그려져 있다.

  이 그림은 옛날을 상기해 그려진 것으로, 1343년에는 이미 다음의 단계로 이행하고 있었다고 생각된다.

 

 

 

 

2, 다음에, 혼간지가 사원으로 해서 결정되어 왔을 무렵, 미카게당은 육각당이 아니고, 분 3간의 건물이 되었다.

  그 당내에, 다다미가 주위 깔개에 깔아 있었다고 한다.

  그리고, 중심으로 아미타 여래가 놓여져 신란의 미카게는 그 옆에 안치된 것 같다.

 

  이미지적으로는, 묘원사유당, 네고로사 다이시도우등이 같은 느낌이었던 것일 것이다.

 

묘원사유당, 1314년의 건조로 중요문화재

묘원사유당의 평면도

 

묘원사유당은, 마무네계의 건물에서는 최고급이다.

간소한 공포, 낮은 천정 등, 주택풍의 요소를 볼 수 있다.

 

 

3, 혼간지 7세·존여의 시대에, 미카게당은 큰폭으로 개축된 것 같다.

  또, 이 시대에 아미다도우가 만들어져 미카게당, 아미다도우의 2당체제가 되었다.

  연대로 말하면 1436년부터 1457년간이다.

 

  위는, 그 미카게당의 평면도.

  렌뇨의 아들·실오의 기록을 바탕으로 만든 평면도이다.

  건물은 상단과 하단으로 나누어져 상단 우측을 Naijin로서 미카게가 안치되었다.

  그리고, Naijin의 좌측으로 압마루방을 만들어, 하단에 넓은 공간을 만들고 Gejin로 해, 많은 인간을 수용했다.

  이 시대의 미카게당으로 처음으로 Gejin가 만들어진 것이지만, 많은 인간을 수용하는 필요를 느껴 건물을 개조했을 것이다.

 

4, 1478년, 혼간지 8세의 렌뇨는 야마시나에 혼간지를 쌓았지만, 미카게당은 한층 더 규모를 확대했다.

  위는 그 상상 평면도.

  7세·존여의 미카게당의 좌우 전방으로 각각 1간 추가되었다.

  건물이 카미단, 시타단으로 나누어지는 것은 같지만, 상단은 2 방추가되어 4 방이 되었다.

  또, 하단은 주위에 1간의 넓은 인연이 붙었다.

  기록에 의하면, 이 건물에서 300명을 수용한 것 같다.이 평면도의 작자는, 1간의 넓이를 종래의 6자로부터 쿄토풍의 6자 5치수로 확대했다고 상정하고 있다.

  

 

 

 

5, 그 후, 혼간지는 본거지를 오사카(오오사카)로 옮겼지만, 위는 오사카모토원사시대의 미카게당의 상상 평면도이다.

  시대는 16 세기의 대부분을 커버한다.

  큰 변화는, Naijin를 중심으로 좌우 대칭에 방이 배치되어 Naijin의 전에 울짱간과 같은 공간이 형성되어 한층 더 그 전에 광대한 Gejin가 배치된 것이다.

  그리고 Gejin는 내부에 2개의 주렬이 다니며 3로 구분되어 있지만, 이것은 현재, 많은 마무네 사원의 본당에서 볼 수 있는 형식이다.

  요컨데, 오사카모토원사시대의 미카게당에 대하고 처음으로, 현재의 마무네 본당 형식이 확립했다고 말할 수 있을 것이다.

 

 

조련테라모토당(1504년)과 그 평면도

 

오사카모토원사와 같은 시대의 마무네 본당은, 이 조련테라모토당 밖에 존재하지 않는다.

조련테라모토당은, 마무네 사원의 본당으로서 일본에서 가장 낡은 옛날 건축의 잔존물이며, 중요문화재의 지정을 받고 있다.

 

 

 

1597년, 혼간지 미카게당의 평면도

 

6, 오사카에서 템마를 거치고, 1591년, 혼간지는 쿄토에 부지가 주어지고 사원을 짓는다.

  당초는 템마 시대의 건물을 이축했지만, 1596년의 대지진으로 피해를 받았으므로, 다음 해에 개조했다.

  이 때의 평면도가 남아 있지만, 그것이 우에노타이라면도이다.

 

  주목 해야 할 것은, 와 영주 이외 전부, 각주인 것.툇마루가 매우 넓은 일.또, 락연의 주위에 헌주가 조밀하게 배치되어 오야뿌리를 지지하고 있는 것.이 근처는 지진의 반성일까.

  덧붙여서, 이 평면도에 잘 닮은 건물이 남아 있다.그것이 나가하마 출장소 일, 오도리절의 본당이다.

 

오도리 테라모토당, 중요문화재

 

오도리 테라모토당은 원·동 혼간지의 미카게당으로 되어 있다.

1652년부터 54년에 걸쳐 쿄토로부터 나가하마로 이축되었다.

 

1602년, 혼간지는 동쪽과 서로 분리했지만, 종래의 혼간지는 니시혼간지가 되어, 동 혼간지는 새로운 부지와 건물을 토쿠가와가로부터 주어졌다.이 건물은 원래는 후시미성의 옛날 건축의 잔존물에서, 동 혼간지에게 줄 수 있었던 때, 큰폭으로 개조되었다고 생각된다.

 

 

 

오도리 테라모토당의 사진

 

매우 넓은 툇마루, 조밀하게 배치된 헌주, 외부, 내부의 기둥 전부가 각주 등, 1597년 평면도와 꼭 닮다.아마 후시미성의 건물을 개조했을 때, 1597년의 혼간지 미카게당을 참고로 했을 것이다.

 

 

계속된다

 

 

 

 

 



TOTAL: 9004

番号 タイトル ライター 参照 推薦
4304
No Image
朝鮮語学会事件 ..長くなった....... 2012-04-13 3775 0
4303
No Image
日本では、話題にならないニュー....... dkool 2012-04-13 5165 0
4302
No Image
膳�� imal 2012-04-12 4932 0
4301
No Image
韓国報道 スカイツリー dkool 2012-04-11 6630 0
4300
No Image
和時計をつくる�� imal 2012-04-10 6389 0
4299
No Image
朝鮮時代風俗画申潤福 namgaya33 2012-04-10 5779 0
4298
No Image
東本願寺御影堂の歴史、その3 栄養市民 2012-04-07 5392 0
4297
No Image
青森県のねぶた祭り JAPAV 2012-04-06 6273 0
4296
No Image
東本願寺御影堂の歴史、その2 栄養市民 2012-03-29 5234 0
4295
No Image
古朝鮮が絹のメッカで見える........ tradepack 2012-03-29 4776 0
4294
No Image
南米マヤ,アズテックの修正骸骨....... tradepack 2012-03-29 5759 0
4293
No Image
朝鮮語学会事件 2012-03-26 5798 0
4292
No Image
東本願寺御影堂の歴史 栄養市民 2012-03-25 6354 0
4291
No Image
【真実の】韓国詩人名鑑【歴史】 koyoi 2012-03-20 5271 0
4290
No Image
国際法を作った人たちの意見 kemukemu1 2012-03-17 6620 0
4289
No Image
日帝強制占領期間文学と詩人 2012-03-15 5042 0
4288
No Image
韓国の植民地日本 16cm 2012-03-14 5263 0
4287
No Image
( ^▽^)<釘を刺しておく。 kemukemu1 2012-03-12 6236 0
4286
No Image
反韓デモ namgaya33 2012-03-11 5404 0
4285
No Image
渤海族科コリアックゾックはだれ....... tradepack 2012-03-10 3721 0